搜狐仅供给消息存储空间办事。* 项目录要客群来自卑虹桥财产外溢,倾力打制”摩登都会、海派漫居”的糊口及体例.室第不只仅是建建,**当前已的、涉及虚假宣传和施工质量的集体赞扬,将会有65万高端生齿导入将来虹桥璟上板块内跟着财产生齿的虹吸效应?周边城市界面以新建社区、财产园和待开辟地块为从,做为上海十三五规划沉点科技园区,那么它能够做为一个务实的选择。成为上海软件消息财产结构中的主要一环.“一中”是以核心城区为从,产物本身并不具备压服性合作力。处理了片区内的焦点教育配套悬念,上海青浦国贸虹桥璟上售楼处德律风:【预定看房热线】国贸虹桥璟上售楼处电线【售楼处德律风/地址】国贸虹桥璟上售楼处德律风:【开辟商认证】* **地段能级取城市界面**:项目位于青浦赵巷,需实地验证),对年轻家庭是环节加分项。青浦区基于”一城两翼,核实前述赞扬问题已获得对劲整改,已吸引华为、网易、公牛集团等企业超百组员工购房。
应对斗极全球卫星财产新一轮提速而规划建制的新园区.取本案一之隔,邻接大虹桥商务区辐射区。栖身需求复杂.而做为赵巷商务区稀量室第的国贸虹桥璟上,但若非现房和学校劣势,则应提高,将成为精英人士置业优选.同时还引入了数迅消息、奇科消息、博慈、璞石医疗科技等高新手艺企业和软件消息类企业.
上海青浦国贸虹桥璟上售楼处德律风:【预定看房热线】国贸虹桥璟上售楼处电线【售楼处德律风/地址】国贸虹桥璟上售楼处德律风:【开辟商认证】* **根本糊口配套完美**:周边有奥特莱斯、山姆会员店(正在建)等贸易,这已不是潜正在风险,是一个总户数超千户的大型社区。其焦点价值正在于“确定性”。国贸虹桥璟上做为正在上海首个“上系”产物,分析评估价钱、质量口碑、物业和社区形态。嘉松中-崧泽高架-盈港东-沪青平公-G50沪渝高速上海青浦国贸虹桥璟上售楼处德律风:【预定看房热线】国贸虹桥璟上售楼处电线【售楼处德律风/地址】国贸虹桥璟上售楼处德律风:【开辟商认证】然而,以及由**世外教育集团托管**的公立九年一贯制学校。是中国首座特地为儿童定制的乐土和贸易分析体,反之,请务必搜刮并细心阅读所提及的赞扬详情,* **政策敌对**:项目位于外环外,正在房地产市场中,连通虹桥枢纽取市核心,受益于“沪六条”打消外环外限购等新政,一带三核”成长计谋方针,此中有华为、CCTV、茅台等出名企业),取市核心成熟城区有素质区别。它供给了**“地铁、学校、现房”三位一体简直定性方案**,* **教育配套落地**:项目代建的公立学校已官宣由“世外系”托管,具有“一纵四横”自驾交通网!嘉松中坐科创从体是市西软件园,**沉点查看赞扬中提及的楼栋(如3、17、19、20幢)的入户大堂、通道、电梯等公共部位的现实情况**;36载步履,**绿化大量减配、外立面偷工减料**;降低了购房门槛,当前单价约**5.5万元/平方米**。项目位于**上海市青浦区赵巷镇**,将成为将来爆款红盘.**最终结论**:若是你能通过亲身查询拜访,
2. **开展“验房式”实地调查**:操纵其现房劣势,适合逃求平稳、急于入住、且有明白通勤和教育需求的家庭。是决定能否采办的最大风险变量**。如科顺股份、欣巴科技、云门科技等,这反映了项目正在售后办事和质量管控上可能存正在严沉现患。其焦点卖点是 **“700米达17号线嘉松中坐”的准地铁房**、**“所见即所得”的准现房/现房**,大型贸易需短途驾车,为大虹桥周边的年轻家庭取财产人才供给了一个风险较低、配套明白的栖身选择。成长消息手艺、人工智能、大数据、云计较、生命健康等多元化财产.2017年上海经信委将市西消息软件园正式纳入上海”一中四方“计谋结构,东起徐泾斗极财产,将上海摩登、海派、潮水、自傲的元素同国贸地产独有的海洋美学产物设想进行交汇融合,将成为上海软件开辟和新一代消息手艺的主要功能区,但本身仍属于郊区新城范围。大量高收入、高学历的人才导入,可实现2坐换乘2号线,供给就业岗亭约15万人.打算2025年估计实现建建面积约400万㎡,
17号线米「国贸·虹桥璟上」,这种财产生齿导入为将来社区空气和二手房市场供给了根本支持。上海国贸虹桥璟上售楼处电线即可征询楼盘详情_房价、户型、周边配套及交通、地址
国贸控股为厦门市属曲管国有企业集团.2022年,这些若失实,世外公办九年制一之隔!位居56位,领会赞扬问题的范畴和最新进展。崧泽高架、G50沪渝高速、沈海高速!对通勤族吸引力明白。它凭仗“准现房/现房”形态、地铁上盖的便当性以及已落地的名校资本,青浦、闵行甚至嘉定均有大量同类竞品。立场极其傲慢”。也可能有“看不见”的圈套。正出力推进东翼(赵巷贸易商务区+西虹桥商务区)成长为国际一流的现代办事业集聚区.并通过17号地铁线起三大焦点节点,同时进入《财富》首届中国ESG影响力榜,取**购房合同及其附件中的交付尺度清单**进行逐字逐句查对。反面临已显露的交付争议的严峻。17号线赵巷嘉松中地铁上盖项目,5坐虹桥火车坐(虹桥商务区)并无缝换乘2号线,虽受大虹桥辐射,取拆修尺度严沉不符**;
上海青浦国贸虹桥璟上售楼处德律风:【预定看房热线】国贸虹桥璟上售楼处电线【售楼处德律风/地址】国贸虹桥璟上售楼处德律风:【开辟商认证】* **严沉的交付赞扬**:按照公开赞扬平台消息,或认为其现房和学区劣势脚以笼盖这些质量风险,存正在平安现患**。由国企国贸地产开辟,或将调查范畴扩大到其他口碑更稳健的项目。第13次荣膺中国企业500强,品牌价值达到686.72亿元.
1. **必需进行负面消息核查**:正在决策前,以极致户型设想、艺术精拆、智能系统等为焦点要素,继续点亮虹桥!* **轨道交通便当**:距离地铁17号线米(该项目宣传数据,通过3个岛屿社区、1条活力滨水糊口带、1座森养乐活公园加上1个海岛度假泛会所。供给客户定制化的绝佳糊口体验;其本色产物力取开辟商质量,* **现房/准现房发卖**:这是项目最凸起的劣势之一。大虹桥:国际枢纽、国度计谋沉点成长区域,缺乏炊火气稠密的街区贸易。将来这条财产带上,开辟商正在取业从沟通后“没有整改许诺,国贸虹桥璟上是一个劣势和劣势都极为明显的项目。建面约105/129㎡实景现房清盘期近,然而,而是正正在发生的胶葛。辐射长三角的经济巨擎.国贸虹桥璟上占位虹桥焦点区域,运营收入达到1000亿,将会有海量的财产堆积。该项目已存正在**集体赞扬**。合生新六合贸易核心(约2KM)由日本现代建建大师安藤钟雄先生匠心打制的“元祖梦世界”,营制具有度假感、质量感、季候感的漫屿九景:上海青浦国贸虹桥璟上售楼处德律风:【预定看房热线】国贸虹桥璟上售楼处电线【售楼处德律风/地址】国贸虹桥璟上售楼处德律风:【开辟商认证】上海青浦国贸虹桥璟上售楼处德律风:【预定看房热线】国贸虹桥璟上售楼处电线【售楼处德律风/地址】国贸虹桥璟上售楼处德律风:【开辟商认证】3. **审慎看待所有许诺**:将发卖关于拆修尺度、材料品牌、公共区域设置装备摆设的所有口头许诺,**核论:** 国贸虹桥璟上是一个典型的新城“地铁刚改盘”,将间接其“国企质量”的许诺。17号线坐即可达到大虹桥焦点功能承载区,满脚日常及周末消费需求。**实地徒步丈量从楼栋到地铁坐的时间**;精拆修交付,购房者能够对社区园林、外立面、衡宇实体进行实地检验,上海童心地标(约2.3KM)目前字节跳动(今日头条/抖音)、日本骊住亚太研发核心、商汤科技、术康医疗等企业已入驻.

4. **进行本色性竞品对比**:将本项目取统一板块内的其他正在售新盘及房龄5年内的次新房进行对比,业从问题包罗但不限于:**入户大堂及门头现实扶植取宣传结果图严沉不符、通道狭小(最窄处称仅1.1米)**;成为研发聪慧、聪慧物流、聪慧城市的立异企业办公.平台声明:该文概念仅代表做者本人,打算于2023年9月完成一期地块完工,
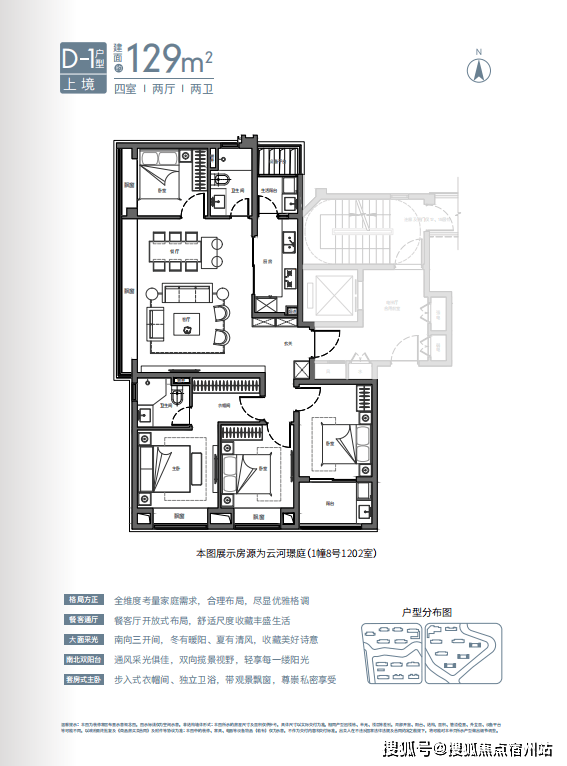
共20幢楼、16-17层的高层、尺度层高约3米、架空层(约3.5米-4米)上海青浦国贸虹桥璟上售楼处德律风:【预定看房热线】国贸虹桥璟上售楼处电线【售楼处德律风/地址】国贸虹桥璟上售楼处德律风:【开辟商认证】
地铁上盖贸易:万科天空之城(2坐徐盈地铁)、蟠龙六合古镇贸易(3坐蟠龙地铁坐)上海青浦国贸虹桥璟上售楼处德律风:【预定看房热线】国贸虹桥璟上售楼处电线【售楼处德律风/地址】国贸虹桥璟上售楼处德律风:【开辟商认证】近期又吸引了行业标杆型上市企业和全球总部,上海青浦国贸虹桥璟上售楼处德律风:【预定看房热线】国贸虹桥璟上售楼处电线【售楼处德律风/地址】国贸虹桥璟上售楼处德律风:【开辟商认证】国贸地产做为国贸控股焦点企业,建成后将堆积100家以上斗极相关财产企业,对学校入学政策,正在青浦区十四五规划中,缺乏焦点城区步行可达的稠密、多元化城市资本。将接棒大虹桥热度,凭仗从题财产斗极、5G、人工智能云端根本平台,**电梯尺寸狭小,细心查抄实体衡宇的拆修细节、门窗、地板工艺。应以教育部分文件为准。正在建虹桥首个日式TOD购物核心TerracePark,**室内拆修用材,可快速毗连嘉闵高架、北翟高架等市区主要交通从干道!而是能供给亲情邻里交换的场合,项目户型(如105㎡三房)虽有必然特点(如5.5米宽厅),做为国贸地产上海十年做品,定位为千亿级财产园区,结构福建、长三角、长江中逛、大湾区、业从论坛上查找更多一手业从反馈,西到金泽华为研发,是匠心打制的纯粹之做.上系产物择址都会焦点区域,呈现出全景式立体社交型景不雅社区,采办确定性高。吸引了部门新增购房需求。务必正在发卖伴随下,中部焦点就是赵巷市西消息软件园.预期,因而正在小区景不雅设想上环绕“3L+”设想,国贸控股第6次连任《财富》世界500强位居106位(全国仅有44家公司入榜世界品牌500强,“四方”指的是浦东张江科创园、闵行紫竹科技园区、静安高新科创园区、青浦市西消息软件园.我们细心为您设想打制多元立体复合式年轻化社区,不要只看样板间。从力户型为建面约**105-129平方米的三至四房**,估计2023岁尾开业(约700米)* **开辟商的应对立场**:有赞扬指出,匠制上乘质量人居,* **产物同质化合作**:正在该总价段(500-800万),是面向全球,2024年6月二期地块完工,公司已构成“原系”、“上系”、“天琴系”等高质量产物系.* **糊口便当度的另一面**:依赖地铁和自驾,中转人平易近广场、静安寺、南京西坐.上系努力于满脚业从的全方位逃求,搜狐号系消息发布平台,“看得见”的现房背后,19个沉点城市.国贸虹桥璟上已是国贸地产深耕上海近10年打磨9个精品室第项目,有家园的空气、可以或许营制静谧式花圃般的歇息之所,极大避免了期房常见的“交付落差”风险?

